Petlice pro bezpečnostní spínače STA.../ STP.../ SGP.../ SGA... s únikovým odjišťovacím prvkem
- Petlice pro spínače STA.../ STP.../ SGP.../ SGA... s únikovým odjišťovacím prvkem
- Ocelová petlice
- Pro dveře se závěsy napravo
- Petlice s únikovou pákou
- Aretační knoflík v otevřené poloze
- Vhodné pro mezeru mezi dveřmi a rámem cca 15 mm

Popis
Rozsah dodávky
- Aktuátor předem namontovaný v jazýčku závory
Objednávejte zvlášť:
- Bezpečnostní spínač
Aretace v otevřené poloze
Cílem aretace v otevřené poloze je zamezit uzavření osob uvnitř stroje.
Únikový odjišťovací prvek
Petlice s únikovým odjišťovacím prvkem mají únikovou páku, která umožňuje otevřít petlici zevnitř ochranného krytu.
Typy dveří a dveřní doraz
Vhodný pro dveře na pantech a posuvné dveře
Vhodný pro dveře se závěsy napravo
S dveřním dorazem, dveře nelze otevírat dovnitř.
Integrovaný zajišťovací mechanismus
Integrovaný zajišťovací mechanismus umožňuje zajistit petlici například pomocí zámků v otevřené poloze. Tím lze zamezit nechtěnému uzavření osob v nebezpečném prostoru.

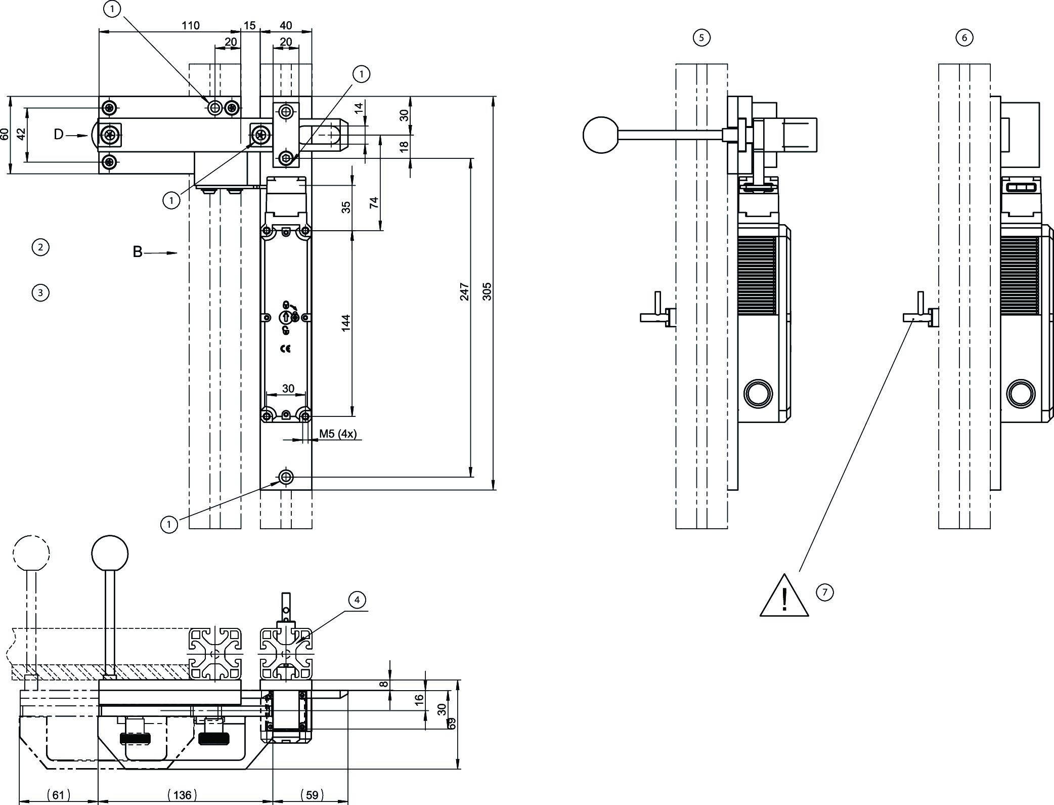
Rozměrové výkresy

| 1 | Pro šroub M6 |
| 2 | Bezpečnostní spínač STP, STA, SGP, SGA: směr nájezdu C |
| 3 | Bezpečnostní spínač objednávejte zvlášť. |
| 4 | Rám ochranné mříže (40 × 40) |
| 5 | Pohled D |
| 6 | Pohled B |
| 7 | Při použití únikového odjišťovacího prvku spínače nesmí být aktuátor pod tahovým napětím (např. v důsledku deformovaných dveří nebo tahání za páku petlice) 1) Petlice s aretací. Aretace v otevřené poloze. (Zamezuje nechtěnému zavření petlice.) Odjištění vytažením aretačního knoflíku. |
Technické údaje
Mechanické hodnoty a prostředí
| Směr nájezdu | A |
| Počet instalovatelných bezpečnostních spínačů | 1 |
| Únikový odjišťovací prvek | Ano |
| Teplota při skladování | -25 ... 70 °C |
| Materiál | |
| Základová deska | Zinkovaná ocel |
| Rukojeť | Plast |
| Vodicí lišty | Plast |
| Konzola spínače | Ocel s práškovým nástřikem |
Různé
| Aretace v otevřené poloze | Aretace pomocí čepu |
Příslušenství
Ke stažení
Jednotlivé dokumenty
Pokyny
Bezpečnostní informace pro petlice
Č. dok.
Verze
Jazyk
Velikost
Bezpečnostní informace pro petlice
Č. dok.
2530033
Verze
04-03/24
Jazyk
Velikost
0,5 MB
Safety Information for Bolts
Information de sécurité pour verrous-targettes
Información de seguridad para cerrojos
Sicherheitsinformation für Riegel
Information de sécurité pour verrous-targettes
Información de seguridad para cerrojos
Sicherheitsinformation für Riegel
Č. dok.
2530033
Verze
04-03/24
Jazyk
Velikost
0,2 MB
Sicherheitsinformation für Riegel
Č. dok.
2530033
Verze
04-03/24
Jazyk
Velikost
0,2 MB
Informação de segurança referente ao trinco
Č. dok.
2530033
Verze
04-03/24
Jazyk
Velikost
0,4 MB
Informazioni sulla sicurezza per il chiavistello
Č. dok.
2530033
Verze
04-03/24
Jazyk
Velikost
0,1 MB
Tolózár biztonsági információi
Č. dok.
2530033
Verze
04-03/24
Jazyk
Velikost
0,5 MB
Информация за безопасност за ригели
Č. dok.
2530033
Verze
04-03/24
Jazyk
Velikost
0,5 MB
Sikkerhedsinformation for bolte
Č. dok.
2530033
Verze
04-03/24
Jazyk
Velikost
0,4 MB
Ohutusalane teave riivistuste kohta
Č. dok.
2530033
Verze
04-03/24
Jazyk
Velikost
0,5 MB
Turvallisuustietoja salvalle
Č. dok.
2530033
Verze
04-03/24
Jazyk
Velikost
0,4 MB
Πληροφορίες ασφαλείας για μάνδαλα
Č. dok.
2530033
Verze
04-03/24
Jazyk
Velikost
0,5 MB
Sigurnosne informacije za brave
Č. dok.
2530033
Verze
04-03/24
Jazyk
Velikost
0,5 MB
Aizbīdņu drošības informācija
Č. dok.
2530033
Verze
04-03/24
Jazyk
Velikost
0,5 MB
Saugos informacija skląsčiui
Č. dok.
2530033
Verze
04-03/24
Jazyk
Velikost
0,5 MB
Veiligheidsinformatie voor grendels
Č. dok.
2530033
Verze
04-03/24
Jazyk
Velikost
0,4 MB
Sikkerhetsinformasjon for låser
Č. dok.
2530033
Verze
04-03/24
Jazyk
Velikost
0,4 MB
Informacje o bezpieczeństwie dotyczące użytkowania zasuw
Č. dok.
2530033
Verze
04-03/24
Jazyk
Velikost
0,5 MB
Säkerhetsinformation för regeln
Č. dok.
2530033
Verze
04-03/24
Jazyk
Velikost
0,4 MB
Varnostne informacije o zapahu
Č. dok.
2530033
Verze
04-03/24
Jazyk
Velikost
0,5 MB
Bezpečnostná informácia pre závory
Č. dok.
2530033
Verze
04-03/24
Jazyk
Velikost
0,5 MB
Sürgüler için güvenlik bilgisi
Č. dok.
2530033
Verze
04-03/24
Jazyk
Velikost
0,5 MB
Informații de siguranță privind zăvoarele
Č. dok.
2530033
Verze
04-03/24
Jazyk
Velikost
0,5 MB
Ostatní dokumenty
Prodejní doklady
Bezpečnostní spínače s kovovým pouzdrem
Č. dok.
Verze
Jazyk
Velikost
Bezpečnostní spínače s kovovým pouzdrem
Č. dok.
121650
Verze
11-03/18
Jazyk
Velikost
7,8 MB
Safety Switches with Metal Housing
Č. dok.
100369
Verze
11-03/18
Jazyk
Velikost
7,8 MB
Interrupteurs de sécurité avec boîtier métallique
Č. dok.
100676
Verze
11-03/18
Jazyk
Velikost
7,9 MB
Interruptores de seguridad con carcasa metálica
Č. dok.
104856
Verze
11-03/18
Jazyk
Velikost
14,0 MB
Sicherheitsschalter mit Metallgehäuse
Č. dok.
100319
Verze
11-03/18
Jazyk
Velikost
7,9 MB
金属壳体 的安全开关
Č. dok.
102453
Verze
11-03/18
Jazyk
Velikost
8,2 MB
Bezpečnostní spínače s plastovým pouzdrem
Č. dok.
Verze
Jazyk
Velikost
Bezpečnostní spínače s plastovým pouzdrem
Č. dok.
121649
Verze
11-03/18
Jazyk
Velikost
6,5 MB
Safety Switches with Plastic Housing
Č. dok.
096956
Verze
11-03/18
Jazyk
Velikost
6,5 MB
Interrupteurs de sécurité avec boîtier plastique
Č. dok.
100677
Verze
11-03/18
Jazyk
Velikost
6,6 MB
Interruptores de seguridad con carcasa plástica
Č. dok.
104855
Verze
11-03/18
Jazyk
Velikost
6,6 MB
Sicherheitsschalter mit Kunststoffgehäuse
Č. dok.
096955
Verze
11-03/18
Jazyk
Velikost
6,6 MB
塑料壳体 的安全开关
Č. dok.
116243
Verze
11-03/18
Jazyk
Velikost
6,1 MB
CAD-Data
Objednací údaje
| Obj. č. | 096390 |
| Název výrobku | RIEGEL S-AF |
| Hmotnost brutto | 2,171kg |
| Číslo celního tarifu | 83014090000 |

