Cerrojo para cabezas de lectura CEM-A-LE05...
- Cerrojo para cabezas de lectura CEM-A-LE05...
- Cerrojo de acero
- Para puertas con sujeción a la izquierda
- Adecuado para una apertura de puerta de aprox. 15 mm

Descripción
Combinaciones posibles
Cabezas de lectura CEM-A-LE05...
Alcance de suministros
- Partes del cerrojo
Pedido aparte:
- Cabeza de lectura
- Actuador CEM-A-BE05
- Unidad de evaluación CES-AZ...
Tipos de puerta y sujeción de puerta
Adecuado para puertas batientes y correderas Adecuado para puertas con sujeción a la izquierda Con tope, la puerta no puede abrirse hacia dentro.
Pieza de bloqueo integrada
Mediante esta pieza, el cerrojo puede asegurarse en la posición abierta, por ejemplo, con cerraduras. Permite evitar que las personas se queden encerradas de forma accidental dentro de la zona de peligro.

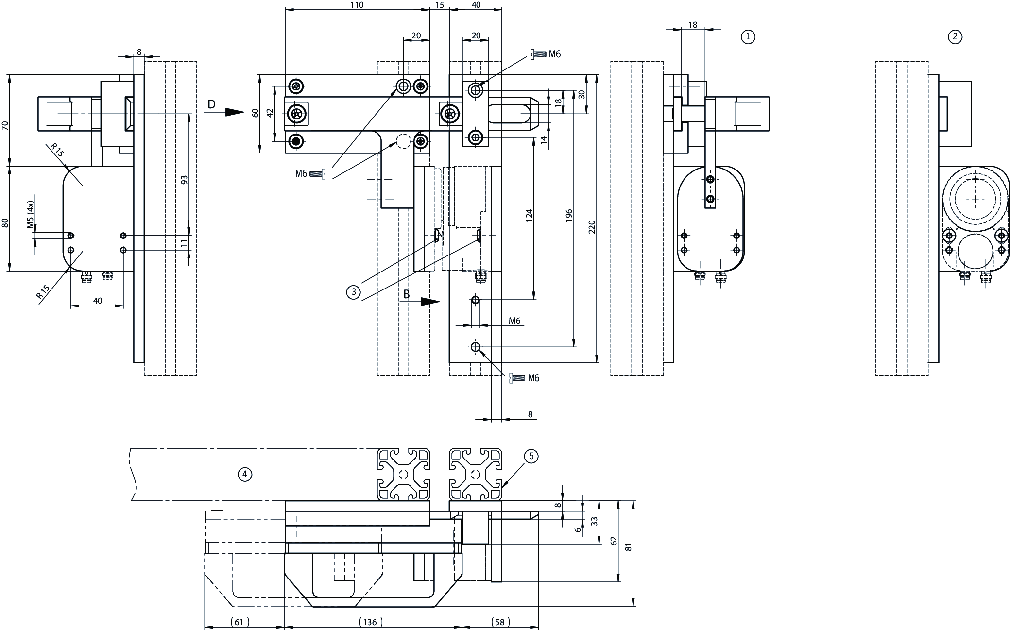
Dibujos acotados

| 1 | Vista D |
| 2 | Vista B |
| 3 | Se incluyen 4 tornillos de seguridad para el montaje. |
| 4 | Puerta con sujeción a la izquierda |
| 5 | Bastidor de la rejilla protectora (40 × 40) |
Datos técnicos
Valores mecánicos y entorno
| Dirección de ataque | C |
| Número de interruptores de seguridad montables | 1 |
| Desbloqueo antipánico | Ninguno. |
| Temperatura de almacenamiento | -25 ... 70 °C |
| Material | |
| Soporte de fijación | Acero con recubrimiento de polvo |
| Listones guía | Plástico |
| Manilla | Plástico |
| Placa de base | Acero galvanizado |
Varios
| Parada | Ninguno. |
Accesorios
Descargas
Documentos sueltos
Instrucciones
Información de seguridad para cerrojos
N.º doc.
Versión
Idioma
Tamaño
Información de seguridad para cerrojos
Safety Information for Bolts
Information de sécurité pour verrous-targettes
Sicherheitsinformation für Riegel
Safety Information for Bolts
Information de sécurité pour verrous-targettes
Sicherheitsinformation für Riegel
N.º doc.
2530033
Versión
04-03/24
Idioma
Tamaño
0,2 MB
Sicherheitsinformation für Riegel
N.º doc.
2530033
Versión
04-03/24
Idioma
Tamaño
0,2 MB
Informação de segurança referente ao trinco
N.º doc.
2530033
Versión
04-03/24
Idioma
Tamaño
0,4 MB
Informazioni sulla sicurezza per il chiavistello
N.º doc.
2530033
Versión
04-03/24
Idioma
Tamaño
0,1 MB
Bezpečnostní informace pro petlice
N.º doc.
2530033
Versión
04-03/24
Idioma
Tamaño
0,5 MB
Tolózár biztonsági információi
N.º doc.
2530033
Versión
04-03/24
Idioma
Tamaño
0,5 MB
Информация за безопасност за ригели
N.º doc.
2530033
Versión
04-03/24
Idioma
Tamaño
0,5 MB
Sikkerhedsinformation for bolte
N.º doc.
2530033
Versión
04-03/24
Idioma
Tamaño
0,4 MB
Ohutusalane teave riivistuste kohta
N.º doc.
2530033
Versión
04-03/24
Idioma
Tamaño
0,5 MB
Turvallisuustietoja salvalle
N.º doc.
2530033
Versión
04-03/24
Idioma
Tamaño
0,4 MB
Πληροφορίες ασφαλείας για μάνδαλα
N.º doc.
2530033
Versión
04-03/24
Idioma
Tamaño
0,5 MB
Sigurnosne informacije za brave
N.º doc.
2530033
Versión
04-03/24
Idioma
Tamaño
0,5 MB
Aizbīdņu drošības informācija
N.º doc.
2530033
Versión
04-03/24
Idioma
Tamaño
0,5 MB
Saugos informacija skląsčiui
N.º doc.
2530033
Versión
04-03/24
Idioma
Tamaño
0,5 MB
Veiligheidsinformatie voor grendels
N.º doc.
2530033
Versión
04-03/24
Idioma
Tamaño
0,4 MB
Sikkerhetsinformasjon for låser
N.º doc.
2530033
Versión
04-03/24
Idioma
Tamaño
0,4 MB
Informacje o bezpieczeństwie dotyczące użytkowania zasuw
N.º doc.
2530033
Versión
04-03/24
Idioma
Tamaño
0,5 MB
Säkerhetsinformation för regeln
N.º doc.
2530033
Versión
04-03/24
Idioma
Tamaño
0,4 MB
Varnostne informacije o zapahu
N.º doc.
2530033
Versión
04-03/24
Idioma
Tamaño
0,5 MB
Bezpečnostná informácia pre závory
N.º doc.
2530033
Versión
04-03/24
Idioma
Tamaño
0,5 MB
Sürgüler için güvenlik bilgisi
N.º doc.
2530033
Versión
04-03/24
Idioma
Tamaño
0,5 MB
Informații de siguranță privind zăvoarele
N.º doc.
2530033
Versión
04-03/24
Idioma
Tamaño
0,5 MB
Otros documentos
Documentos de venta
CAD-Data
Datos de pedido
| N.º de pedido | 097957 |
| Nombre de artículo | RIEGEL CEM-C |
| Peso bruto | 2,418kg |
| Partida arancelaria | 83014090000 |

