Système d’interverrouillage MGB-L2...-EI (interverrouillage magnétique) avec 5 éléments de commande, connecteurs 7/8" et M12
- Interverrouillage avec contrôle du verrouillage
- Arrêt d’urgence selon ISO 13850, lumineux
- 4 bouton-poussoir lumineux
- avec étiquettes adhésives
- Raccordement par connecteurs 7/8" et M12
- avec fiche de raccordement pour colonne lumineuse (M12, 5 broches)
- Prémontage sur plaque-support
- Avec déverrouillage interne
- Unicode

Description
Liaison Ethernet/IP
Connecteur 7/8" et connecteur M12 (détrompage de type d)
Commutateur intégré
Montage en ligne ainsi que DLR via commutateur intégré
Utilisation flexible comme verrouillage ou interverrouillage
L’analyse correspondante des données sécurisées de l’appareil par la commande permet une utilisation comme dispositif soit de verrouillage, soit d’interverrouillage (avec ou sans surveillance).
Arrêt d’urgence lumineux
Arrêt d’urgence avec éclairage librement pilotable.
Déverrouillage interne
La fonction de déverrouillage interne permet aux personnes enfermées accidentellement d’ouvrir la porte lorsqu’elle est bloquée en position de verrouillage depuis l’intérieur de la zone de danger.

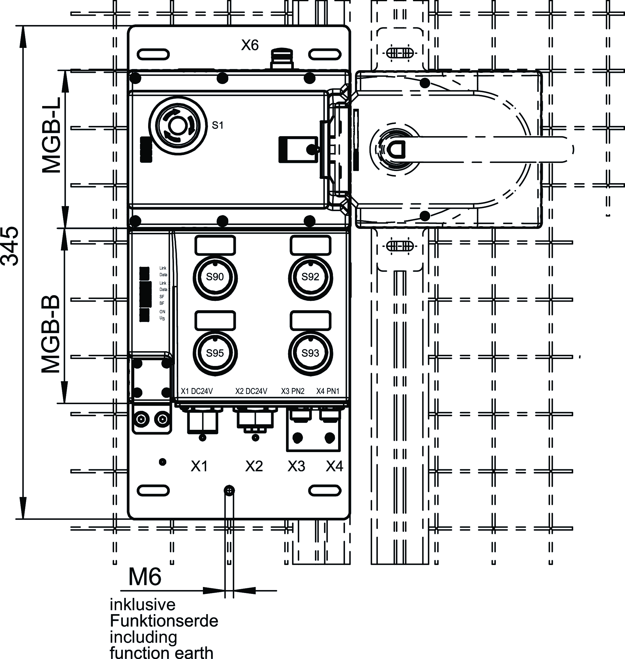
Dessins cotés

Caractéristiques techniques
Autorisations


Déverrouillage interne MGB-E-A2-106051 (Code article 106051)
Valeurs mécaniques et environnement
| Position de montage | Au choix |
| Température de stockage | -30 ... 70 °C |
| Durée de vie mécanique | 1 x 10⁶ |
| Température ambiante | -30 ... 55 °C |
| Matériau | |
| Boîtier | Zinc moulé sous pression / acier inoxydable peint par poudrage |
Divers
| Numéro de version du produit | V2.0.0 |
| Caractéristique supplémentaire | avec plaque de montage |
Modules de poignée MGB-H-AA1A2-L-106221 (Code article 106221)
Valeurs mécaniques et environnement
| Position de montage | Charnières DIN à gauche |
| Température de stockage | -25 ... 70 °C |
| Indice de protection | IP65 |
| Température ambiante | -20 ... 55 °C |
| Matériau | |
| Boîtier | Plastique renforcé avec des fibres de verre, zinc moulé sous pression, nickelé, acier inoxydable |
Divers
| Numéro de version du produit | V3.0.0 |
| Caractéristique supplémentaire | avec plaque de montage |
Modules d’interverrouillage MGB-L2B-EIA-L-136525 (Code article 136525)
Espace de travail
| Distance de déconnexion sécurisée sar | |
| Seulement pour la porte coulissante | 20 mm (S'applique uniquement aux portes coulissantes lorsque le contrôle d'interverrouillage est désactivé) |
Eléments de commande et d'affichage
| Schéma d'occupation | |
| B1 | |
| L1 |
| Repère | Couleur | Extras | Étiquette amovible | Remarque étiquette amovible | Version | Élément de commutation | Nombre | Désignation1 | LED |
|---|---|---|---|---|---|---|---|---|---|
| 1 | avec anneau adhésif | Arrêt d’urgence lumineux | 2OP | ||||||
| 90 | rouge | Bouton lumineux | 1F | ||||||
| 92 | vert | Bouton lumineux | 1F | ||||||
| 93 | jaune | Bouton lumineux | 1F | ||||||
| 95 | vert | Bouton lumineux | 1F |
Puissance électrique connectée
| Câble de raccordement | |
| Ethernet | Câble Ethernet/IP, au moins cat. 5e |
| Tension assignée d’isolement Ui | 75 V |
| Tension de choc assignée Uimp | 0.5 kV |
| Exigences de protection CEM | Selon EN 61000-4 et EN 61326-3-1 |
| Courant d’alimentation maximal dans le bloc de raccordement | |
| X1, X2 | max. 4000 mA |
| Classe de protection | III |
| Consommation | max. 500 mA |
| Codage par transpondeur | Unicode |
| Degré de pollution (externe, selon EN 60947-1) | 3 |
| Alimentation X1 | |
| Couverture | |
| externe | min. 1 A à action retardée |
| Tension de service DC | |
| L1 | 24 V DC -15% ... +10% ((protégée contre les inversions de polarité, stabilisée, ondulation résiduelle<5 %, PELV)) |
| Tension auxiliaire DC | |
| L2 | 24 V DC -15% ... +10% (La tension auxiliaire n’est pas nécessaire pour le système MGB) |
| Alimentation X2 | |
| Tension de service DC | |
| L1 | 24 V DC -15% ... +10% (pour mise en boucle appareils en aval) |
| Tension auxiliaire DC | |
| L2 | 24 V DC -15% ... +10% (pour mise en boucle appareils en aval) |
Valeurs mécaniques et environnement
| Type de connexion | |
| 7/8" Power (X2) | |
| Connecteur M12 (X6) | |
| Câble Ethernet/IP, au moins cat. 5e | M12 détrompage de type D, blindé (X4) |
| 7/8" Power (X1) | |
| Câble Ethernet/IP, au moins cat. 5e | M12 détrompage de type D, blindé (X3) |
| Position de montage | Charnières DIN à gauche |
| Fréquence de commutation | 0.25 Hz |
| Température de stockage | -25 ... 70 °C |
| Durée de vie mécanique | |
| 1 x 10⁶ | |
| en cas d’utilisation comme butée de porte et énergie d’impact d’1 joule | 0.1 x 10⁶ |
| Temps de réaction | |
| Interverrouillage | max. 250 ms Durée de désactivation (La durée de réaction est la durée maximale entre la modification d’un état en entrée et l’effacement du bit correspondant dans le protocole de bus.) |
| Arrêt d’urgence / Arrêt machine | max. 100 ms Durée de désactivation (La durée de réaction est la durée maximale entre la modification d’un état en entrée et l’effacement du bit correspondant dans le protocole de bus.) |
| Position de la porte | max. 250 ms Durée de désactivation (La durée de réaction est la durée maximale entre la modification d’un état en entrée et l’effacement du bit correspondant dans le protocole de bus.) |
| Position du pêne | max. 250 ms Durée de désactivation (La durée de réaction est la durée maximale entre la modification d’un état en entrée et l’effacement du bit correspondant dans le protocole de bus.) |
| Résistance aux chocs et aux vibrations | selon EN IEC 60947-5-3 |
| Indice de protection | IP54 |
| Température ambiante | |
| avec UB = 24 V DC | -20 ... 55 °C |
| Matériau | |
| Boîtier | Plastique renforcé avec des fibres de verre, zinc moulé sous pression, nickelé, acier inoxydable |
| Force de retenue FZh | 2000 N |
| Principe d’interverrouillage | Verrouillage sous tension |
Valeurs caractéristiques selon EN ISO 13849-1 et EN IEC 62061
| Durée d’utilisation | 20 y |
| Safety Integrity Level (SIL) | SIL 3 (EN 62061:2005) |
| Commande d’interverrouillage | |
| Catégorie | 4 |
| Niveau de performance | PL e |
| PFHD | 4,91 x 10-9 (Taux de défaillance fixe sans prise en compte des défauts des pièces d’usure.) |
| Arrêt d’urgence | |
| B10D | |
| Arrêt d’urgence | 0.13 x 10⁶ |
| Analyse arrêt d’urgence | |
| Catégorie | 4 |
| Niveau de performance | PL e |
| PFHD | 3,05 x 10-9 (Taux de défaillance fixe sans prise en compte des défauts des pièces d’usure.) |
| Surveillance de l’interverrouillage et de la position du protecteur | |
| Couverture diagnostique (DC) | 99 % |
| Catégorie | 4 |
| Niveau de performance | PL e |
| PFHD | 3,37 x 10-9 (Taux de défaillance fixe sans prise en compte des défauts des pièces d’usure.) |
Divers
| Étiquette amovible | |||||||
| |||||||
| Numéro de version du produit | V1.5 | ||||||
Interface
| Protocole de données bus | Ethernet/IP |
| Protocole de données sécurité | CIP Safety |
| Interface de données | |
| Ethernet |
Composants

106051
MGB-E-A2-106051
Module de déverrouillage interne MGB-E... prémonté sur support de montage
MGB-E-A2-106051
Module de déverrouillage interne MGB-E... prémonté sur support de montage
- Déverrouillage interne depuis la zone de danger
- Monté sur support de montage
- Poignée de porte rouge sécurité
- Conçu pour profilés de porte jusqu’à 40 mm
- Axe rallongé pour portes plus épaisses (disponible en option)
106221
MGB-H-AA1A2-L-106221
Module de poignée MGB-H...
MGB-H-AA1A2-L-106221
Module de poignée MGB-H...
- Pêne intelligent
- Dispositif de consignation
- Poignée de porte
- Support de montage
136525
MGB-L2B-EIA-L-136525
Module d’interverrouillage MGB-L2...-EI (interverrouillage magnétique) avec 4 boutons, arrêt d’urgence, connecteurs 7/8" et M12
MGB-L2B-EIA-L-136525
Module d’interverrouillage MGB-L2...-EI (interverrouillage magnétique) avec 4 boutons, arrêt d’urgence, connecteurs 7/8" et M12
- Interverrouillage avec contrôle du verrouillage
- Arrêt d’urgence selon ISO 13850, lumineux
- 4 bouton-poussoir lumineux
- avec étiquettes adhésives
- Raccordement par connecteurs 7/8" et M12
- avec fiche de raccordement pour colonne lumineuse (M12, 5 broches)
- Prémontage sur plaque-support
- Unicode
Accessoires
Fonctions supplémentaires
Téléchargements
Documents individuels
Déclarations de conformité
EU-Konformitätserklärung
N° doc.
Version
Langue
Taille
EU-Konformitätserklärung
N° doc.
EDC2123624
Version
Langue
Taille
0,2 MB
UKCA-Konformitätserklärung
N° doc.
Version
Langue
Taille
UKCA-Konformitätserklärung
N° doc.
EDC20001506
Version
Langue
Taille
0,1 MB
Instructions
Operating Instructions Safety Systems MGB-L..B-EI-… (Ethernet/IP) and With Data Structure Type A From V1.5.0
N° doc.
Version
Langue
Taille
Operating Instructions Safety Systems MGB-L..B-EI-… (Ethernet/IP) and With Data Structure Type A From V1.5.0
N° doc.
2126330
Version
09/21
Langue
Taille
2,9 MB
Manual de instrucciones Sistemas de seguridad MGB-L..B-EI-… (Ethernet/IP) y con estructura de datos de tipo A V1.5.0 o superior
N° doc.
2126330
Version
09/21
Langue
Taille
3,0 MB
Betriebsanleitung Sicherheitssysteme MGB-L..B-EI-… (Ethernet/IP) und mit Datenstruktur Typ A ab V1.5.0
N° doc.
2126330
Version
09/21
Langue
Taille
2,9 MB
사용 설명서 안전 시스템 MGB-L..B-EI-…(이더넷/IP) 데이터 구조 타입 A 포함 V1.5.0부터
N° doc.
2126330
Version
09/21
Langue
Taille
3,3 MB
Instrucțiuni de utilizare Sisteme de siguranță MGB-L..B-EI-… (Ethernet/IP) și cu structură de date tip A începând de la versiunea V1.5.0
N° doc.
2126330
Version
09/21
Langue
Taille
3,1 MB
Autres documents
Données de commande
| N° de commande | 161480 |
| Désignation article | MGB-L2HEB-EIA-L-161480 |
| Poids brut | 6,96kg |
| Code douanier | 85371098 |
| ECLASS | 27-27-24-05 Safety-related transponder switch with guardlocking |











