安全スイッチ STP TWIN, ケーブル引込口 M20 x 1.5, ドア位置用接点
- TWIN 機能 (2 つのアクチュエーティング・ヘッド)
- 3 x ケーブル挿入口 M20 x 1.5
- ドア位置用接点
- 補助リリース
- LED インジケーター
- 開回路電流方式

Description
バージョン TWIN
スイッチには 2 つのアクチュエーティング・ヘッドがあります。これで 2 つの可動ガードを同時に固定することができます。
アプローチ方向
横および縦方向
90° 単位で調整可能
横アプローチ方向の大きなオーバートラベル
ドアが閉じているときに遊びを増やす必要がある場合は、オーバートラベル付きアクチュエーターを使用できます。このアクチュエーターを使うと、閉じているドアを作動方向にわずかに動かすことができるようになります。これは、たとえば安全ドアに戸当たりゴムがある場合に重要となります。オーバートラベル付きアクチュエーターを使用することで、圧縮されたゴムによる継続的な圧力を軽減できます。このようにして、スイッチヘッドおよびドア機構にかかる負荷を軽減します。
LED インジケーター
スイッチには自由に割り当てできる LED インジケーターが 2 つあります (赤と緑)。
ガードロック方式
開回路電流 (電源オンでロック): 開回路電流方式ガードロックによるガードでは、ガードロック ソレノイドへの電源が遮断されるまでガードがロックされます。ロック解除はスプリング力で行われます。電気式ガードロックという用語も使われます。
スイッチ素子
4141 | スローアクション・スイッチング・コンタクト |
ガードロック用接点: 2 つの強制開離接点 | |
ドア・モニタリング用接点: 2 つの強制開離接点 |
補助リリース
前面の補助リリースにより、停電などの障害が発生した場合でも装置にアクセスすることができます。ロック解除は工具またはキーを使用して実行します。補助リリースは、誤用から保護する必要があります (シーリング、ラッカー)。
補助キー リリース
スイッチヘッドに追加ロック。補助リリースのような機能。補助キーリリースの位置は表示窓に表示されます。
納入範囲
補助キー・リリース用のキー2本が納品範囲に含まれます。
アクセサリーが必要
アクチュエーターは含まれていません。
機能図面

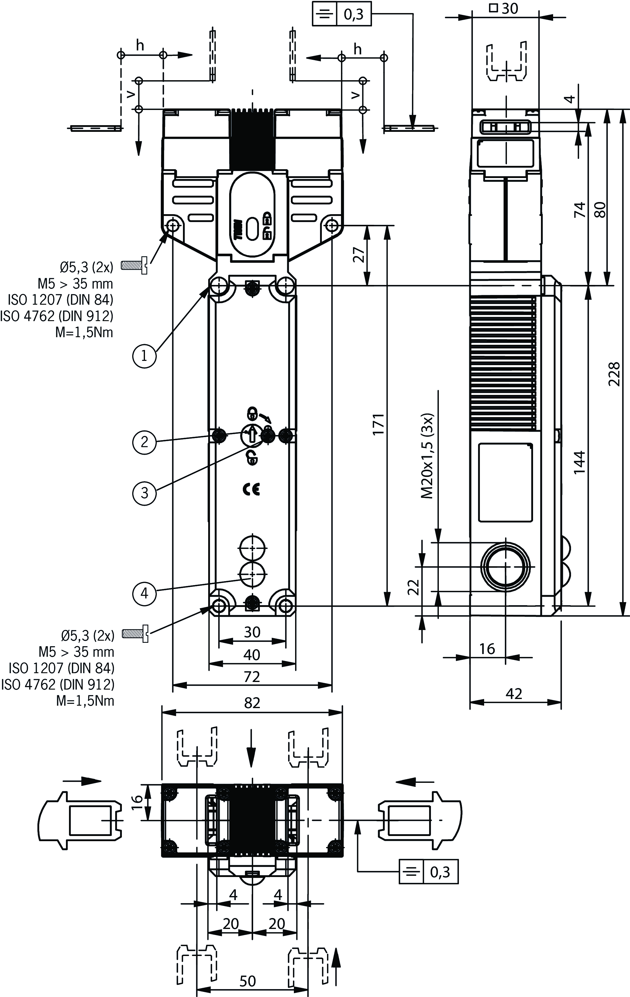
寸法図

| 1 | ここではネジを締め付けないでください (2×) |
| 2 | 補助リリース |
| 3 | 止めネジ |
| 4 | LED インジケーター |
接続例

| square_grey_dark.eps | ドア・モニタリング |
| square_grey_light.eps | ソレノイド・モニタリング |
Technical data
認証取得状況



電気的接続値
| ヘッジ | max. 4 A ジー |
| 電力消費量 | 8 W |
| 接続断面図 | 0.34 ... 1.5 mm² |
| ディスプレイ モジュール | 24 V -15% ... +10% |
| 定格絶縁電圧 Ui | 250 V |
| 定格インパルス電圧 Uimp | 2.5 kV |
| 利用区分 | |
| AC-15 | 4A 230V |
| DC-13 | 4A 24V |
| ソレノイド動作電圧 | |
| AC/DC | 24 V -15% ... +10% |
| ソレノイドデューティサイクル | 100 % |
| スイッチング電圧 | |
| 10 mA で最低 | 12 V |
| スイッチング電流 | |
| 24V で最低 | 1 mA |
| 熱定格電流 Ith | 4 A |
機械的価値と環境
| Anfahrgeschwindigkeit | max. 20 m/min |
| アプローチ方向 | AとC (2 つのアクチュエーティング・ヘッド) |
| 接続形態 | |
| 3 x | M20 x 1.5 |
| ドア位置強制開離コンタクトの数 | 2 |
| ガード ロック モニタリング強制解離コンタクトの数 | 2 |
| 抜き取り力 | 30 N |
| アクチュエーション頻度 | max. 1200 1/h |
| アクチュエーティング力 | 35 N |
| 取り付け向き | すべて |
| 挿入深さ | 24.5 mm |
| 保管温度 | -25 ... 70 °C |
| 機械的寿命 | 1 x 10⁶ |
| 保持力 | 20 N |
| スイッチング原理 | スローアクション・スイッチング・コンタクト |
| 保護等級 | IP67 |
| 周囲温度 | -20 ... 55 °C |
| 素材 | |
| ハウジング | 強化熱可塑性プラスチック |
| お問い合わせ | 銀合金、金フラッシュ |
| ロック保持力 Fmax | 2500 N |
| ロック保持力 FZh | 2000 N |
| ガードロック方式 | 開回路電流方式 |
EN ISO 13849-1およびEN IEC 62061に準拠した特性値。
| B10D | 耐用時間 | |
|---|---|---|
| ガード位置の監視 | 4.5x106 | 20 y |
| 重要! DC-13 100 mA/24V で有効な値 | ||
| ガードロックの監視 | 4.5x106 | 20 y |
| 重要! DC-13 100 mA/24V で有効な値 | ||
アクチュエーター ACTUATOR-S-GT-SN との組み合わせ
| オーバートラベル | 5 mm |
Accessories
AE-B-A1-02,0-096230
- エスケープ・リリースまたは非常リリースに使用できます
- オートリターンなし
- 被覆長 2 m (ロープ長 6 m)
AE-B-A1-02,0-F-097747
- エスケープ・リリースまたは非常リリースに使用できます
- オートリターン
- 被覆長 2 m (ロープ長 6 m)
AE-B-A1-03,0-098313
- エスケープ・リリースまたは非常リリースに使用できます
- オートリターンなし
- 被覆長 3 m (ロープ長 6 m)
AE-B-A1-04,0-098314
- エスケープ・リリースまたは非常リリースに使用できます
- オートリターンなし
- 被覆長 4 m (ロープ長 6 m)
AE-B-A1-03,0-F-111233
- エスケープ・リリースまたは非常リリースに使用できます
- オートリターン
- 被覆長 3 m (ロープ長 6 m)
AE-B-A1-06,0-125582
- エスケープ・リリースまたは非常リリースに使用できます
- オートリターンなし
- ロープ長 6m (被覆なし)
AE-B-A1-06,0-F-124770
- エスケープ・リリースまたは非常リリースに使用できます
- オートリターン
- ロープ長 6m (被覆なし)
Downloads
Single Documents
Déclaration UE de conformité
Declaración de conformidad UE
EU-Konformitätserklärung
Dichiarazione UE di conformità
Déclaration UE de conformité
Declaración de conformidad UE
EU-Konformitätserklärung
Dichiarazione UE di conformità
Other Documents
CAD data
Ordering data
| Ordernumber | 103636 |
| Item designation | STP-TW-4A-4141AC024L024M |
| Gross weight | 0,677kg |
| Customs tariff number | 85365019000 |
| ECLASS | 27-27-26-03 Safety switch with guard control |






















