평가 모듈 및 버스 모듈 MGB-L2...-PN... (솔레노이드 힘에 의한 가드 잠금) 제어 부재 2개, 7/8" 및 M12 플러그 장착
- 가드 로크 모니터링 기능 탑재 가드 잠금장치
- 발광 푸시버튼 2개
- 접착 라벨 포함
- 7/8" 및 M12 플러그를 통한 연결
- 마운팅 플레이트에 사전 조립됨
- PROFINET RT 스위치 내장
- 유니코드

Description
PROFINET 연결
ANSI/B93.55M-1981에 따른 7/8” 플러그 및 IEC 61076-2-101에 따른 M12 플러그(d 코딩형)
PROFINET RT 스위치
내장형 RT 스위치에 의한 점대점 기술 네트워크 구조
연동 또는 가드 잠금 기능으로서 유연하게 사용
제어 시스템에 의해 각 안전 장치 데이터를 각각 평가함으로써, 연동장치 또는 가드 잠금장치(모니터링 기능 탑재 또는 비탑재)로서 사용할 수 있습니다.

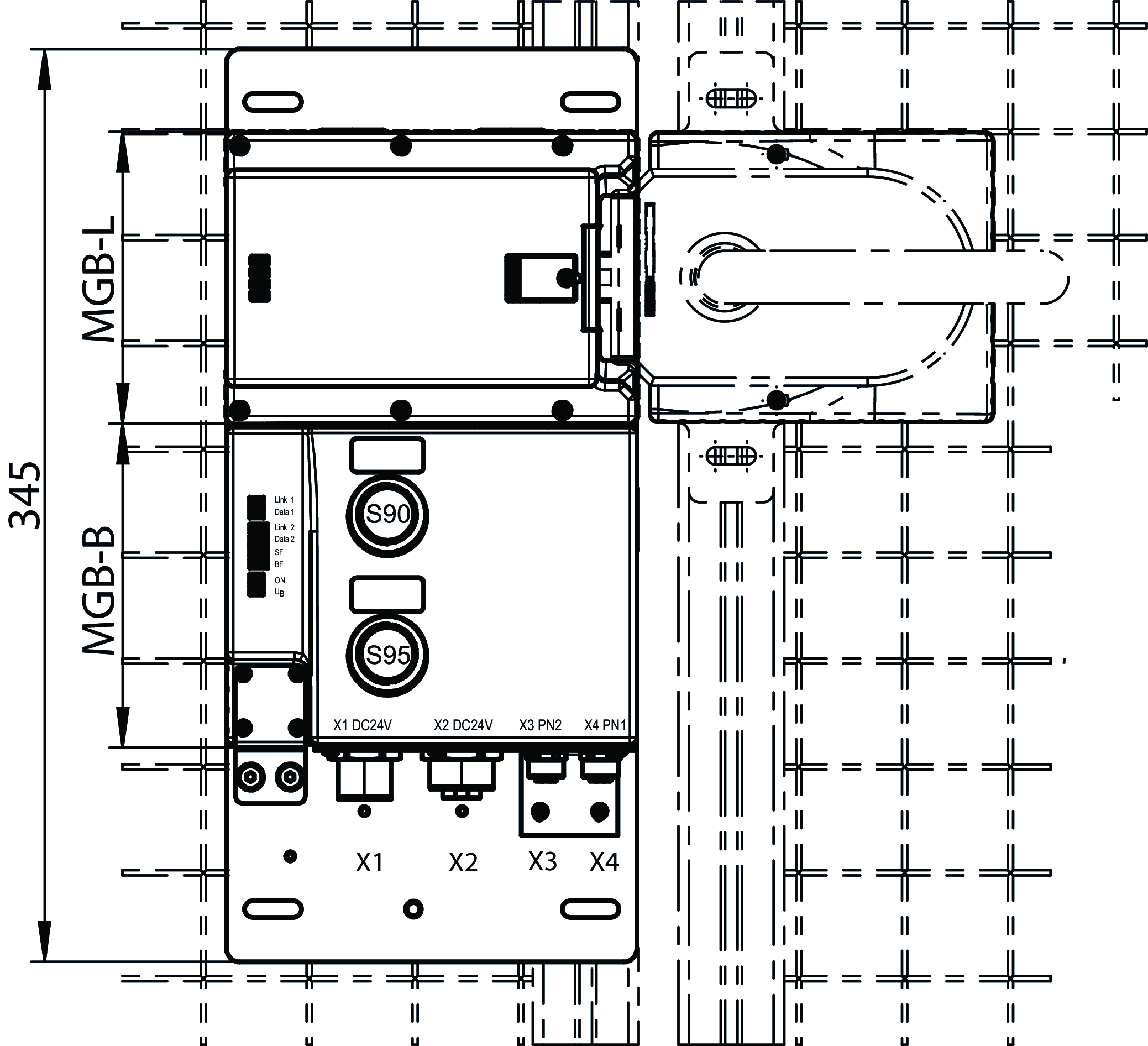
치수 도면

Technical data
승인




작업 공간
| 보안 스위치 끄기 거리 sar | |
| 슬라이딩 도어만 해당 | 20 mm (가드 로크 모니터링 기능이 비활성화된 슬라이딩 도어에서 사용하는 것에만 적용) |
작동 및 디스플레이 요소
| 점유 다이어그램 | |
| B1 | |
| L0 |
| 위치 | 색 | 기타 | 비고 슬라이드인 라벨 | 버전 | 슬라이드인 라벨 | 스위칭 부재 | 번호 | Designation1 | LED |
|---|---|---|---|---|---|---|---|---|---|
| 90 | 발광 푸시버튼 | NO 1개 | |||||||
| 95 | 발광 푸시버튼 | NO 1개 |
전기 연결 값
| 연결 케이블 | |
| Ethernet | 프로피넷 I/O 케이블, 최소한 범주 5e |
| 정격 절연 전압 Ui | 75 V |
| 정격 임펄스 전압 Uimp | 0.5 kV |
| EMC 방호 요건 | EN 61000-4 및 EN 61326-3-1에 의거 |
| 연결 블록으로 공급되는 최대 공급 전류 | |
| X1, X2 | max. 4000 mA |
| 안전 등급 | III |
| 전류 소비 | max. 500 mA |
| 트랜스폰더 코딩 | Unicode |
| 오염 등급(외부, EN 60947-1에 의거) | 3 |
| 전원장치 X1 | |
| 헤징 | |
| 외부 | min. 1 A 느린 송풍 |
| 작동 전압 DC | |
| L1 | 24 V DC -15% ... +10% ((역극 방지, 조절형, 잔류 리플<5%, PELV)) |
| 보조 전압 DC | |
| L2 | 24 V DC -15% ... +10% (MGB 시스템에는 보조 전압이 필요하지 않습니다) |
| 전원장치 X2 | |
| 작동 전압 DC | |
| L1 | 24 V DC -15% ... +10% (연결된 장치의 완전한 순환 고리 형성용) |
| 보조 전압 DC | |
| L2 | 24 V DC -15% ... +10% (연결된 장치의 완전한 순환 고리 형성용) |
기계적 가치 및 환경
| 연결 유형 | |
| 7/8" 전원 (X1(올바른 케이블 선택에 있어서 PNO 보조 문서에서 나온 PROFINET "배선 및 상호 연결 기술' 문서.)) | |
| IEC 61076-2-101에 의거, 프로피넷 I/O 케이블, 최소한 범주 5e | M12, D-코딩, 차폐됨 (X4(올바른 케이블 선택에 있어서 PNO 보조 문서에서 나온 PROFINET "배선 및 상호 연결 기술' 문서.)) |
| 7/8" 전원 (X2(올바른 케이블 선택에 있어서 PNO 보조 문서에서 나온 PROFINET "배선 및 상호 연결 기술' 문서.)) | |
| IEC 61076-2-101에 의거, 프로피넷 I/O 케이블, 최소한 범주 5e | M12, D-코딩, 차폐됨 (X3(올바른 케이블 선택에 있어서 PNO 보조 문서에서 나온 PROFINET "배선 및 상호 연결 기술' 문서.)) |
| 설치 방향 | 도어 경첩 DIN 좌측 |
| 스위칭 주파수 | 0.25 Hz |
| 보관 온도 | -25 ... 70 °C |
| 기계적 수명 | |
| 도어 스톱으로서 사용하는 경우, 1줄의 충격 에너지 | 0.1 x 10⁶ |
| 1 x 10⁶ | |
| 응답 시간 | |
| 도어 위치 | max. 550 ms 꺼짐 시간 (반응 시간은 입력부 상태의 변화와 버스 프로토콜에 있는 해당 비트 삭제 사이의 최대 시간입니다.) |
| 가드 잠금 기능 | max. 550 ms 꺼짐 시간 (반응 시간은 입력부 상태의 변화와 버스 프로토콜에 있는 해당 비트 삭제 사이의 최대 시간입니다.) |
| 볼트 위치 | max. 550 ms 꺼짐 시간 (반응 시간은 입력부 상태의 변화와 버스 프로토콜에 있는 해당 비트 삭제 사이의 최대 시간입니다.) |
| 내충격성 및 내진동성 | EN IEC 60947-5-3에 의거 |
| 보호 등급 | IP54 |
| 주변 온도 | |
| UB = 24V DC에서 | -20 ... 55 °C |
| 재질 | |
| 하우징 | 섬유유리 강화 플라스틱, 니켈 도금 다이캐스트 아연, 스테인리스 스틸 |
| 잠금력 FZh | 2000 N |
| 가드 잠금 원리 | 개방회로 전류 원리 |
EN ISO 13849-1 및 EN IEC 62061에 따른 특성 값
| PL | 최대 SIL | PFHD | 범주 | 임무 시간 | |
|---|---|---|---|---|---|
| 가드 위치의 모니터링 | PL e | 3 | 4.07x10-8 | 4 | 20 y |
| 가드 잠금의 모니터링 | PL e | 3 | 4.07x10-8 | 4 | 20 y |
기타
| 슬라이드인 라벨 | |||||||
| |||||||
| 제품 버전 번호 | V3.30.10 | ||||||
| 추가 기능 | 렌즈 세트, ID 번호 120344 포함 | ||||||
인터페이스
| 버스 데이터 프로토콜 | 프로피넷(IEC 61158 타입 10) |
| 안전 데이터 프로토콜 | Profisafe (IEC 61784-3-3) |
| 날짜 인터페이스 | |
| Ethernet |
Accessories
Downloads
Single Documents
적합성 선언
EU-Konformitätserklärung
Doc. no.
Version
Language
Size
EU-Konformitätserklärung
Doc. no.
EDC2123624
Version
Language
Size
0,2 MB
UKCA-Konformitätserklärung
Doc. no.
Version
Language
Size
UKCA-Konformitätserklärung
Doc. no.
EDC20001506
Version
Language
Size
0,1 MB
지침
Operating Instructions Safety Systems MGB-L..B-PN.-… (PROFINET) and With Data Structure Type B
Doc. no.
Version
Language
Size
Operating Instructions Safety Systems MGB-L..B-PN.-… (PROFINET) and With Data Structure Type B
Doc. no.
2115174
Version
03/24
Language
Size
3,9 MB
Betriebsanleitung Sicherheitssysteme MGB-L..B-PN.-… (PROFINET) und mit Datenstruktur Typ B
Doc. no.
2115174
Version
03/24
Language
Size
3,9 MB
Other Documents
승인 및 인증서
FCC
Doc. no.
Version
Language
Size
FCC
Doc. no.
20001708
Version
Language
Size
0,1 MB
Profisafe
Doc. no.
Version
Language
Size
Profisafe
Doc. no.
Version
Language
Size
0,2 MB
TUEV Süd München
Doc. no.
Version
Language
Size
TUEV Süd München
Doc. no.
Version
Language
Size
0,4 MB
c UL us
Doc. no.
Version
Language
Size
c UL us
Doc. no.
Version
Language
Size
0,7 MB
Ordering data
| Ordernumber | 125577 |
| Item designation | MGB-L2B-PNA-L-125577 |
| Gross weight | 3,kg |
| Customs tariff number | 85371098 |
| ECLASS | 27-27-24-05 Safety-related transponder switch with guardlocking |







