Zuhalteset MGB-L1...-PN... (Zuhaltung durch Federkraft) mit 4 Bedienelementen, 7/8"- und M12-Stecker
- Zuhaltung mit Zuhaltungsüberwachung
- Not-Halt nach ISO 13850 beleuchtet
- 3 Drucktaster beleuchtet mit Symbol
- Anschluss über 7/8" und M12 Stecker
- Vormontiert auf Montageplatten
- Integrierter Profinet RT-Switch
- Unicode

Beschreibung
Profinet Anbindung
7/8"-Stecker nach ANSI/B93.55M-1981 und M12-Stecker (d-kodiert) nach IEC 61076-2-101
Profinet RT-Switch
Linienförmiger Netzaufbau durch integrierten RT-Switch.
Flexibler Einsatz als Verriegelung oder
Zuhaltung
Durch entsprechende Auswertung der sicheren Gerätedaten durch die Steuerung, kann der Einsatz wahlweise als Verriegelung oder Zuhaltung (mit oder ohne Überwachung) erfolgen.
Not-Halt beleuchtet
Not-Halt mit einer frei ansteuerbaren Beleuchtung.







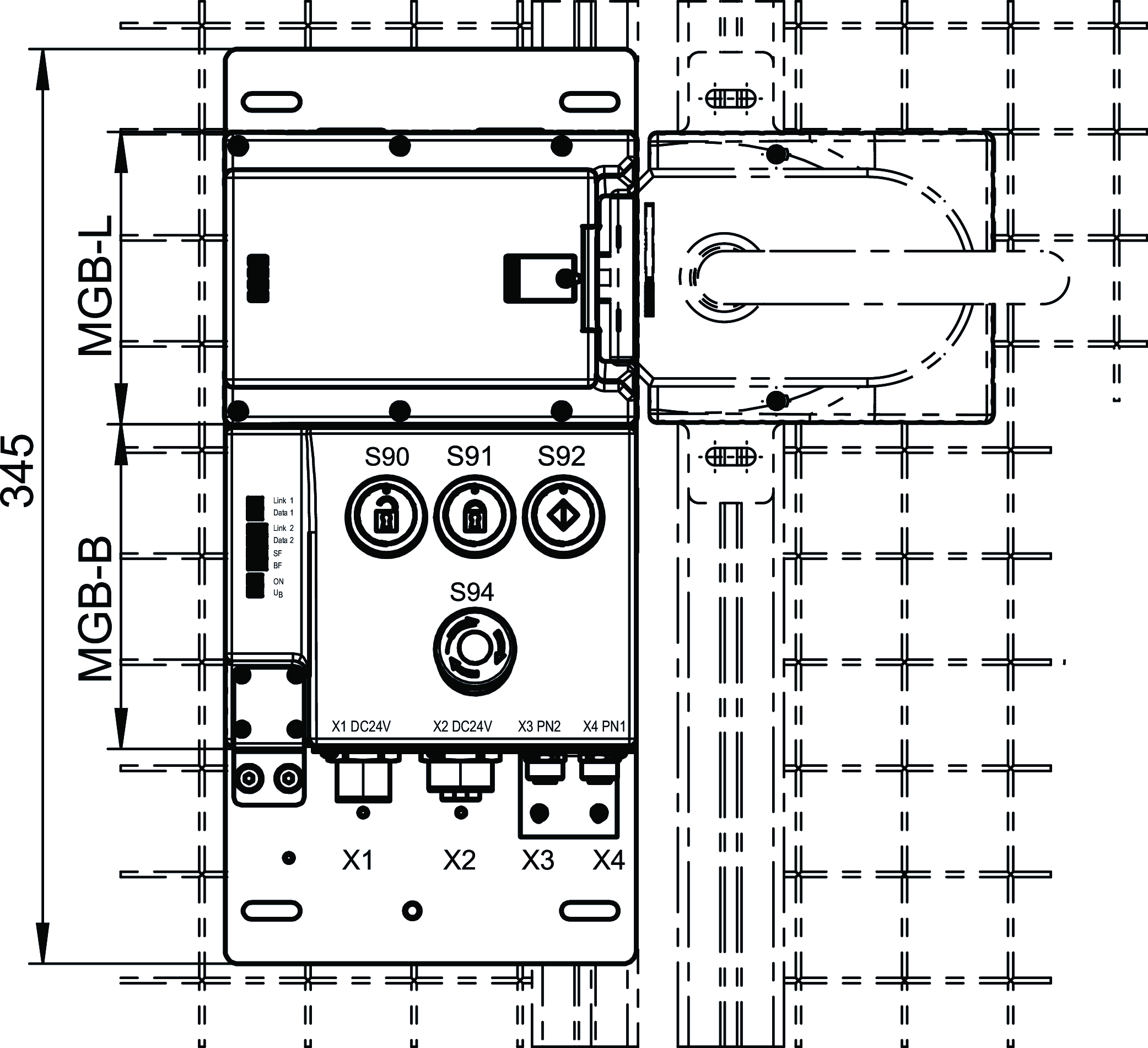
Maßzeichnungen

Technische Daten
Zulassungen




Griffmodule MGB-H-AA1A2-R-106049 (Best. Nr. 106049)
Mechanische Werte und Umgebung
| Einbaulage | Türanschlag DIN Rechts |
| Lagertemperatur | -25 ... 70 °C |
| Schutzart | IP65 |
| Umgebungstemperatur | -20 ... 55 °C |
| Werkstoff | |
| Gehäuse | Glasfaserverstärkter Kunststoff, Zinkdruckguss, vernickelt, Nichtrostender Stahl |
Verschiedenes
| Produktversionsnummer | V3.0.0 |
| Zusätzliches Merkmal | mit Anbauplatte |
Zuhaltemodule MGB-L1B-PNA-R-122733 (Best. Nr. 122733)
Arbeitsbereich
| Gesicherter Ausschaltabstand sar | |
| Nur bei Schiebetür | 20 mm (Gilt nur für die Verwendung an Schiebetüren bei deaktivierter Zuhaltungsüberwachung) |
Bedien- und Anzeigeelemente
| Belegungsschema | |
| B1 | |
| L0 |
| Position | Farbe | Extras | Ausführung | Schaltelement | Einlegeschild | Einlegeschild Anmerkung | Anzahl | Bezeichnung1 | LED |
|---|---|---|---|---|---|---|---|---|---|
| 90 | weiss | bedruckt | Taster beleuchtet | 1S | |||||
| 91 | weiss | bedruckt | Taster beleuchtet | 1S | |||||
| 92 | grün | bedruckt | Taster beleuchtet | 1S | |||||
| 94 | Nothalt beleuchtet | 2ZÖ |
Elektrische Anschlusswerte
| Anschlussleitung | |
| Ethernet | Profinet I/O Leitung, mind. Cat. 5e |
| Bemessungsisolationsspannung Ui | 75 V |
| Bemessungsstoßspannung Uimp | 0.5 kV |
| EMV-Schutzanforderungen | Gemäß EN 61000-4 und EN 61326-3-1 |
| maximaler Einspeisestrom im Anschlussblock | |
| X1, X2 | max. 4000 mA |
| Schutzklasse | III |
| Stromaufnahme | max. 500 mA |
| Transponder-Codierung | Unicode |
| Verschmutzungsgrad (extern, nach EN 60947-1) | 3 |
| Spannungsversorgung X1 | |
| Absicherung | |
| extern | min. 1 A träge |
| Betriebsspannung DC | |
| L1 | 24 V DC -15% ... +10% ((verpolsicher, geregelt, Restwelligkeit <5%, PELV)) |
| Hilfsspannung DC | |
| L2 | 24 V DC -15% ... +10% (Die Hilfsspannung wird für das MGB-System nicht benötigt) |
| Spannungsversorgung X2 | |
| Betriebsspannung DC | |
| L1 | 24 V DC -15% ... +10% (Zum Weiterschleifen für nachfolgende Geräte) |
| Hilfsspannung DC | |
| L2 | 24 V DC -15% ... +10% (Zum Weiterschleifen für nachfolgende Geräte) |
Mechanische Werte und Umgebung
| Anschlussart | |
| nach IEC 61076-2-101, Profinet I/O Leitung, mind. Cat. 5e | M12 D-coded, geschirmt (X3 (Das Dokument PROFINET 'Cabling and Interconnection Technology' der PNO hilft bei der korrekten Auswahl von Leitungen.)) |
| 7/8" Power (X2 (Das Dokument PROFINET 'Cabling and Interconnection Technology' der PNO hilft bei der korrekten Auswahl von Leitungen.)) | |
| 7/8" Power (X1 (Das Dokument PROFINET 'Cabling and Interconnection Technology' der PNO hilft bei der korrekten Auswahl von Leitungen.)) | |
| nach IEC 61076-2-101, Profinet I/O Leitung, mind. Cat. 5e | M12 D-coded, geschirmt (X4 (Das Dokument PROFINET 'Cabling and Interconnection Technology' der PNO hilft bei der korrekten Auswahl von Leitungen.)) |
| Einbaulage | Türanschlag DIN Rechts |
| Schaltfrequenz | 0.25 Hz |
| Lagertemperatur | -25 ... 70 °C |
| Mechanische Lebensdauer | |
| bei Verwendung als Türanschlag und 1 Joule Aufprallenergie | 0.1 x 10⁶ |
| 1 x 10⁶ | |
| Reaktionszeit | |
| Nothalt / Maschinenstopp | max. 250 ms Abschaltzeit (Die Reaktionszeit ist die maximale Zeit zwischen der Änderung eines Eingangszustandes und dem Löschen des entsprechenden Bits im Busprotokoll.) |
| Riegelstellung | max. 550 ms Abschaltzeit (Die Reaktionszeit ist die maximale Zeit zwischen der Änderung eines Eingangszustandes und dem Löschen des entsprechenden Bits im Busprotokoll.) |
| Zuhaltung | max. 550 ms Abschaltzeit (Die Reaktionszeit ist die maximale Zeit zwischen der Änderung eines Eingangszustandes und dem Löschen des entsprechenden Bits im Busprotokoll.) |
| Türstellung | max. 550 ms Abschaltzeit (Die Reaktionszeit ist die maximale Zeit zwischen der Änderung eines Eingangszustandes und dem Löschen des entsprechenden Bits im Busprotokoll.) |
| Schock- und Schwingfestigkeit | gemäß EN IEC 60947-5-3 |
| Schutzart | IP54 |
| Umgebungstemperatur | |
| bei UB = 24 V DC | -20 ... 55 °C |
| Werkstoff | |
| Gehäuse | Glasfaserverstärkter Kunstoff, Zinkdruckguss, vernickelt, Nichtrostender Stahl |
| Zuhaltekraft FZh | 2000 N |
| Zuhaltungsprinzip | Ruhestromprinzip |
Kennwerte nach EN ISO 13849-1 / EN IEC 62061
| PL | maximaler SIL | PFHD | Kategorie | Gebrauchsdauer | |
|---|---|---|---|---|---|
| Ansteuern der Zuhaltung | PL e | - | 3.91x10-8 | 4 | 20 y |
| Überwachen der Stellung der Schutzeinrichtung | PL e | 3 | 4.07x10-8 | 4 | 20 y |
| Überwachen der Zuhaltung | PL e | 3 | 4.07x10-8 | 4 | 20 y |
| Auswerten von Sicherheitssignalen | PL e | 3 | 4.1x10-8 | 4 | 20 y |
| Gilt für alle zusätzlich enthaltenen Sicherheitsfunktionen wie Not-Halt, Zustimmtaster usw. | |||||
| B10D | Gebrauchsdauer | |
|---|---|---|
| Not-Halt | 0.13x106 | 20 y |
Verschiedenes
| Produktversionsnummer | V3.30.10 |
Interface
| Datenprotokoll Bus | Profinet (IEC 61158 type 10) |
| Datenprotokoll Sicherheit | Profisafe (IEC 61784-3-3) |
| Datenschnittstelle | |
| Ethernet |
Komponenten
106049
MGB-H-AA1A2-R-106049
Griffmodul MGB-H...
MGB-H-AA1A2-R-106049
Griffmodul MGB-H...
- Intelligente Riegelzunge
- Sperreinsatz
- Türgriff
- Montageplatte
122733
MGB-L1B-PNA-R-122733
Auswertemodul und Busmodul MGB-L1...-PN... (Zuhaltung durch Federkraft) mit 4 Bedienelementen, 7/8"- und M12-Stecker
MGB-L1B-PNA-R-122733
Auswertemodul und Busmodul MGB-L1...-PN... (Zuhaltung durch Federkraft) mit 4 Bedienelementen, 7/8"- und M12-Stecker
- Zuhaltung mit Zuhaltungsüberwachung
- Not-Halt nach ISO 13850 beleuchtet
- 3 Drucktaster beleuchtet mit Symbol
- Anschluss über 7/8" und M12 Stecker
- Vormontiert auf Montageplatten
- Integrierter Profinet RT-Switch
- Unicode
Zubehör
Downloads
Einzeldokumente
Anleitungen
Betriebsanleitung Sicherheitssysteme MGB-L..B-PN.-… (PROFINET) und mit Datenstruktur Typ B
Dok.-Nr.
Version
Sprache
Größe
Betriebsanleitung Sicherheitssysteme MGB-L..B-PN.-… (PROFINET) und mit Datenstruktur Typ B
Dok.-Nr.
2115174
Version
03/24
Sprache
Größe
3,9 MB
Operating Instructions Safety Systems MGB-L..B-PN.-… (PROFINET) and With Data Structure Type B
Dok.-Nr.
2115174
Version
03/24
Sprache
Größe
3,9 MB
Konformitätserklärungen
EU-Konformitätserklärung
Dok.-Nr.
Version
Sprache
Größe
EU-Konformitätserklärung
Dok.-Nr.
EDC2123624
Version
Sprache
Größe
0,2 MB
UKCA-Konformitätserklärung
Dok.-Nr.
Version
Sprache
Größe
UKCA-Konformitätserklärung
Dok.-Nr.
EDC20001506
Version
Sprache
Größe
0,1 MB
Sonstige Dokumente
Anwendungsbeispiele
Zulassungen und Bescheinigungen
DGUV
Dok.-Nr.
Version
Sprache
Größe
DGUV
Dok.-Nr.
Version
Sprache
Größe
0,8 MB
ProfiNET
Dok.-Nr.
Version
Sprache
Größe
ProfiNET
Dok.-Nr.
Version
Sprache
Größe
0,2 MB
ProfiNET
Dok.-Nr.
Version
Sprache
Größe
0,2 MB
c UL us
Dok.-Nr.
Version
Sprache
Größe
c UL us
Dok.-Nr.
Version
Sprache
Größe
0,7 MB
CAD-Daten
Bestelldaten
| Bestellnummer | 122734 |
| Artikelbezeichnung | MGB-L1HB-PNA-R-122734 |
| Bruttogewicht | 5,82kg |
| Zolltarifnummer | 85371098 |
| ECLASS | 27-27-24-05 Sicherheitsgerichteter Transponderschalter mit Zuhaltung |













