Auswertemodul und Busmodul MGB-L2...-PN... (Zuhaltung durch Magnetkraft) mit 3 Bedienelementen, Push-Pull-Stecker, RC12
- Zuhaltung mit Zuhaltungsüberwachung
- 3 Drucktaster beleuchtet mit Symbol
- Push-Pull Stecker
- inklusiv Anschlusstecker für Zustimmtaster (RC12, 12-polig)
- Vormontiert auf Montageplatten
- Multicode

Beschreibung
Profinet Anbindung
Anschluss über push-pull-Stecker nach IEC 61076-3-117
Flexibler Einsatz als Verriegelung oder Zuhaltung
Durch entsprechende Auswertung der sicheren Gerätedaten durch die Steuerung, kann der Einsatz wahlweise als Verriegelung oder Zuhaltung (mit oder ohne Überwachung) erfolgen.

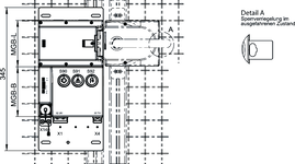
Maßzeichnungen

Technische Daten
Zulassungen





Arbeitsbereich
| Gesicherter Ausschaltabstand sar | |
| Nur bei Schiebetür | 20 mm (Gilt nur für die Verwendung an Schiebetüren bei deaktivierter Zuhaltungsüberwachung) |
Bedien- und Anzeigeelemente
| Belegungsschema | |
| L0 | |
| B1 |
| Position | Farbe | Extras | Einlegeschild Anmerkung | Ausführung | Einlegeschild | Schaltelement | Anzahl | Bezeichnung1 | LED |
|---|---|---|---|---|---|---|---|---|---|
| 90 | weiss | bedruckt | Taster beleuchtet | 1S | |||||
| 91 | gelb | bedruckt | Taster beleuchtet | 1S | |||||
| 92 | blau | bedruckt | Taster beleuchtet | 1S |
Elektrische Anschlusswerte
| Anschlussleitung | |
| Ethernet | Profinet I/O Leitung, mind. Cat. 5e |
| Bemessungsisolationsspannung Ui | 75 V |
| Bemessungsstoßspannung Uimp | 0.5 kV |
| EMV-Schutzanforderungen | Gemäß EN 61000-4 und EN 61326-3-1 |
| maximaler Einspeisestrom im Anschlussblock | |
| X1 | max. 4000 mA |
| Schutzklasse | III |
| Stromaufnahme | max. 500 mA |
| Transponder-Codierung | Multicode |
| Verschmutzungsgrad (extern, nach EN 60947-1) | 3 |
| Spannungsversorgung X1 | |
| Absicherung | |
| extern | min. 1 A träge |
| Betriebsspannung DC | |
| L1 | 24 V DC -15% ... +10% ((verpolsicher, geregelt, Restwelligkeit <5%, PELV)) |
| Hilfsspannung DC | |
| L2 | 24 V DC -15% ... +10% (Die Hilfsspannung wird für das MGB-System nicht benötigt) |
Mechanische Werte und Umgebung
| Anschlussart | |
| nach IEC 61076-3-117 Variante 14, geschirmt, Profinet I/O Leitung, mind. Cat. 5e | PushPull RJ45 (X4 (Das Dokument PROFINET 'Cabling and Interconnection Technology' der PNO hilft bei der korrekten Auswahl von Leitungen.)) |
| für Zustimmtaster | Steckverbinder RC12 (X14) |
| PushPull Power (X1 (Das Dokument PROFINET 'Cabling and Interconnection Technology' der PNO hilft bei der korrekten Auswahl von Leitungen.)) | |
| Einbaulage | Türanschlag DIN Rechts |
| Schaltfrequenz | 0.25 Hz |
| Lagertemperatur | -25 ... 70 °C |
| Mechanische Lebensdauer | |
| bei Verwendung als Türanschlag und 1 Joule Aufprallenergie | 0.1 x 10⁶ |
| 1 x 10⁶ | |
| Reaktionszeit | |
| Riegelstellung | max. 550 ms Abschaltzeit (Die Reaktionszeit ist die maximale Zeit zwischen der Änderung eines Eingangszustandes und dem Löschen des entsprechenden Bits im Busprotokoll.) |
| Zuhaltung | max. 550 ms Abschaltzeit (Die Reaktionszeit ist die maximale Zeit zwischen der Änderung eines Eingangszustandes und dem Löschen des entsprechenden Bits im Busprotokoll.) |
| Türstellung | max. 550 ms Abschaltzeit (Die Reaktionszeit ist die maximale Zeit zwischen der Änderung eines Eingangszustandes und dem Löschen des entsprechenden Bits im Busprotokoll.) |
| Zustimmtaster | max. 250 ms Abschaltzeit (Die Reaktionszeit ist die maximale Zeit zwischen der Änderung eines Eingangszustandes und dem Löschen des entsprechenden Bits im Busprotokoll.) |
| Schock- und Schwingfestigkeit | gemäß EN IEC 60947-5-3 |
| Schutzart | IP54 |
| Umgebungstemperatur | |
| bei UB = 24 V DC | -20 ... 55 °C |
| Werkstoff | |
| Gehäuse | Glasfaserverstärkter Kunstoff, Zinkdruckguss, vernickelt, Nichtrostender Stahl |
| Zuhaltekraft FZh | 2000 N |
| Zuhaltungsprinzip | Arbeitsstromprinzip |
Kennwerte nach EN ISO 13849-1 / EN IEC 62061
| PL | maximaler SIL | PFHD | Kategorie | Gebrauchsdauer | |
|---|---|---|---|---|---|
| Überwachen der Stellung der Schutzeinrichtung | PL e | 3 | 4.07x10-8 | 4 | 20 y |
| Überwachen der Zuhaltung | PL e | 3 | 4.07x10-8 | 4 | 20 y |
| Auswerten von Sicherheitssignalen | PL e | 3 | 4.1x10-8 | 4 | 20 y |
| Gilt für alle zusätzlich enthaltenen Sicherheitsfunktionen wie Not-Halt, Zustimmtaster usw. | |||||
Verschiedenes
| Produktversionsnummer | V3.30.11 |
Interface
| Datenprotokoll Bus | Profinet (IEC 61158 type 10) |
| Datenprotokoll Sicherheit | Profisafe (IEC 61784-3-3) |
| Datenschnittstelle | |
| Ethernet |
Zubehör
ZSB
Zustimmtaster
ZSA, 3-stufig mit Leitung und Steckverbinder RC12
092141
ZSA092141C2038
ZSA092141C2038
- Gehäuse G1
- 3-stufige Funktion
- Anschlussleitung gerade mit Steckverbinder, 5 m
- Direktanschluss an Sicherheitsschalter
097567
ZSA097567C2038
ZSA097567C2038
- Gehäuse G1
- 3-stufige Funktion
- Anschlussleitung gerade mit Steckverbinder, 10 m
- Direktanschluss an Sicherheitsschalter
099495
ZSA099495C2038
ZSA099495C2038
- Gehäuse G1
- 3-stufige Funktion
- Anschlussleitung gerade mit Steckverbinder, 15 m
- Direktanschluss an Sicherheitsschalter
100873
ZSA100873C2038
ZSA100873C2038
- Gehäuse G1
- 3-stufige Funktion
- Anschlussleitung gerade mit Steckverbinder, 25 m
- Direktanschluss an Sicherheitsschalter
Downloads
Einzeldokumente
Anleitungen
Betriebsanleitung Sicherheitssysteme MGB-L..B-PN.-… (PROFINET) und mit Datenstruktur Typ B
Dok.-Nr.
Version
Sprache
Größe
Betriebsanleitung Sicherheitssysteme MGB-L..B-PN.-… (PROFINET) und mit Datenstruktur Typ B
Dok.-Nr.
2115174
Version
03/24
Sprache
Größe
3,9 MB
Operating Instructions Safety Systems MGB-L..B-PN.-… (PROFINET) and With Data Structure Type B
Dok.-Nr.
2115174
Version
03/24
Sprache
Größe
3,9 MB
Konformitätserklärungen
EU-Konformitätserklärung
Dok.-Nr.
Version
Sprache
Größe
EU-Konformitätserklärung
Dok.-Nr.
EDC2123624
Version
Sprache
Größe
0,2 MB
UKCA-Konformitätserklärung
Dok.-Nr.
Version
Sprache
Größe
UKCA-Konformitätserklärung
Dok.-Nr.
EDC20001506
Version
Sprache
Größe
0,1 MB
Sonstige Dokumente
Anwendungsbeispiele
Zulassungen und Bescheinigungen
FCC
Dok.-Nr.
Version
Sprache
Größe
FCC
Dok.-Nr.
20001708
Version
Sprache
Größe
0,1 MB
ProfiNET
Dok.-Nr.
Version
Sprache
Größe
ProfiNET
Dok.-Nr.
Version
Sprache
Größe
0,2 MB
ProfiNET
Dok.-Nr.
Version
Sprache
Größe
0,2 MB
Profinet
Dok.-Nr.
Version
Sprache
Größe
Profinet
Dok.-Nr.
Version
Sprache
Größe
0,2 MB
Profisafe
Dok.-Nr.
Version
Sprache
Größe
Profisafe
Dok.-Nr.
Version
Sprache
Größe
0,2 MB
TUEV Süd München
Dok.-Nr.
Version
Sprache
Größe
TUEV Süd München
Dok.-Nr.
Version
Sprache
Größe
0,4 MB
c UL us
Dok.-Nr.
Version
Sprache
Größe
c UL us
Dok.-Nr.
Version
Sprache
Größe
0,7 MB
CAD-Daten
Bestelldaten
| Bestellnummer | 116521 |
| Artikelbezeichnung | MGB-L2B-PNC-R-116521 |
| Bruttogewicht | 3,454kg |
| Zolltarifnummer | 85371098 |
| ECLASS | 27-27-24-05 Sicherheitsgerichteter Transponderschalter mit Zuhaltung |








