Zuhalteset MGB-L2...-PN... (Zuhaltung durch Magnetkraft) ohne Bedien- oder Anzeigeelementen, Push-Pull-Stecker
- Zuhaltung mit Zuhaltungsüberwachung
- Push- Pull Stecker
- Vormontiert auf Montageplatten
- Integrierter Profinet RT-Switch
- Unicode

Beschreibung
Profinet Anbindung
Anschluss über push-pull-Stecker nach IEC 61076-3-117
Profinet RT-Switch
Linienförmiger Netzaufbau durch integrierten RT-Switch.
Flexibler Einsatz als Verriegelung oder Zuhaltung
Durch entsprechende Auswertung der sicheren Gerätedaten durch die Steuerung, kann der Einsatz wahlweise als Verriegelung oder Zuhaltung (mit oder ohne Überwachung) erfolgen.







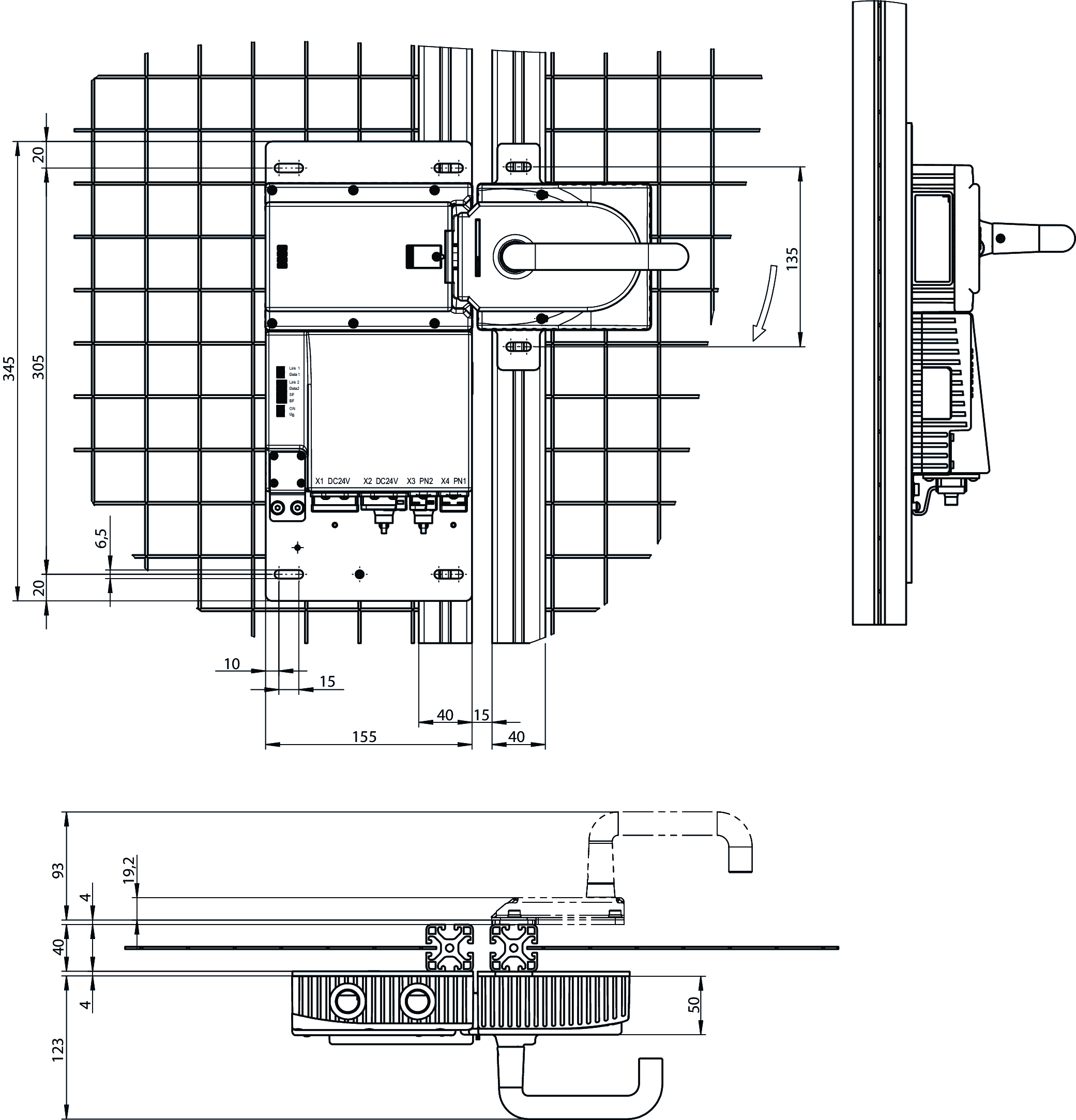
Maßzeichnungen

Technische Daten
Zulassungen




Griffmodule MGB-H-AA1A2-R-106049 (Best. Nr. 106049)
Mechanische Werte und Umgebung
| Einbaulage | Türanschlag DIN Rechts |
| Lagertemperatur | -25 ... 70 °C |
| Schutzart | IP65 |
| Umgebungstemperatur | -20 ... 55 °C |
| Werkstoff | |
| Gehäuse | Glasfaserverstärkter Kunststoff, Zinkdruckguss, vernickelt, Nichtrostender Stahl |
Verschiedenes
| Produktversionsnummer | V3.0.0 |
| Zusätzliches Merkmal | mit Anbauplatte |
Zuhaltemodule MGB-L2B-PNA-R-114044 (Best. Nr. 114044)
Arbeitsbereich
| Gesicherter Ausschaltabstand sar | |
| Nur bei Schiebetür | 20 mm (Gilt nur für die Verwendung an Schiebetüren bei deaktivierter Zuhaltungsüberwachung) |
Bedien- und Anzeigeelemente
| Belegungsschema | |
| L0 | |
| B0 |
Elektrische Anschlusswerte
| Anschlussleitung | |
| Ethernet | Profinet I/O Leitung, mind. Cat. 5e |
| Bemessungsisolationsspannung Ui | 75 V |
| Bemessungsstoßspannung Uimp | 0.5 kV |
| EMV-Schutzanforderungen | Gemäß EN 61000-4 und EN 61326-3-1 |
| maximaler Einspeisestrom im Anschlussblock | |
| X1, X2 | max. 4000 mA |
| Schutzklasse | III |
| Stromaufnahme | max. 500 mA |
| Transponder-Codierung | Unicode |
| Verschmutzungsgrad (extern, nach EN 60947-1) | 3 |
| Spannungsversorgung X1 | |
| Absicherung | |
| extern | min. 1 A träge |
| Betriebsspannung DC | |
| L1 | 24 V DC -15% ... +10% ((verpolsicher, geregelt, Restwelligkeit <5%, PELV)) |
| Hilfsspannung DC | |
| L2 | 24 V DC -15% ... +10% (Die Hilfsspannung wird für das MGB-System nicht benötigt) |
| Spannungsversorgung X2 | |
| Betriebsspannung DC | |
| L1 | 24 V DC -15% ... +10% (Zum Weiterschleifen für nachfolgende Geräte) |
| Hilfsspannung DC | |
| L2 | 24 V DC -15% ... +10% (Zum Weiterschleifen für nachfolgende Geräte) |
Mechanische Werte und Umgebung
| Anschlussart | |
| PushPull Power (X1 (Das Dokument PROFINET 'Cabling and Interconnection Technology' der PNO hilft bei der korrekten Auswahl von Leitungen.)) | |
| nach IEC 61076-3-117 Variante 14, geschirmt, Profinet I/O Leitung, mind. Cat. 5e | PushPull RJ45 (X4 (Das Dokument PROFINET 'Cabling and Interconnection Technology' der PNO hilft bei der korrekten Auswahl von Leitungen.)) |
| PushPull Power (X2 (Das Dokument PROFINET 'Cabling and Interconnection Technology' der PNO hilft bei der korrekten Auswahl von Leitungen.)) | |
| nach IEC 61076-3-117 Variante 14, geschirmt, Profinet I/O Leitung, mind. Cat. 5e | PushPull RJ45 (X3 (Das Dokument PROFINET 'Cabling and Interconnection Technology' der PNO hilft bei der korrekten Auswahl von Leitungen.)) |
| Einbaulage | Türanschlag DIN Rechts |
| Schaltfrequenz | 0.25 Hz |
| Lagertemperatur | -25 ... 70 °C |
| Mechanische Lebensdauer | |
| bei Verwendung als Türanschlag und 1 Joule Aufprallenergie | 0.1 x 10⁶ |
| 1 x 10⁶ | |
| Reaktionszeit | |
| Zuhaltung | max. 550 ms Abschaltzeit (Die Reaktionszeit ist die maximale Zeit zwischen der Änderung eines Eingangszustandes und dem Löschen des entsprechenden Bits im Busprotokoll.) |
| Türstellung | max. 550 ms Abschaltzeit (Die Reaktionszeit ist die maximale Zeit zwischen der Änderung eines Eingangszustandes und dem Löschen des entsprechenden Bits im Busprotokoll.) |
| Riegelstellung | max. 550 ms Abschaltzeit (Die Reaktionszeit ist die maximale Zeit zwischen der Änderung eines Eingangszustandes und dem Löschen des entsprechenden Bits im Busprotokoll.) |
| Schock- und Schwingfestigkeit | gemäß EN IEC 60947-5-3 |
| Schutzart | IP54 |
| Umgebungstemperatur | |
| bei UB = 24 V DC | -20 ... 55 °C |
| Werkstoff | |
| Gehäuse | Glasfaserverstärkter Kunstoff, Zinkdruckguss, vernickelt, Nichtrostender Stahl |
| Zuhaltekraft FZh | 2000 N |
| Zuhaltungsprinzip | Arbeitsstromprinzip |
Kennwerte nach EN ISO 13849-1 / EN IEC 62061
| PL | maximaler SIL | PFHD | Kategorie | Gebrauchsdauer | |
|---|---|---|---|---|---|
| Überwachen der Stellung der Schutzeinrichtung | PL e | 3 | 4.07x10-8 | 4 | 20 y |
| Überwachen der Zuhaltung | PL e | 3 | 4.07x10-8 | 4 | 20 y |
Verschiedenes
| Produktversionsnummer | V3.30.10 |
Interface
| Datenprotokoll Bus | Profinet (IEC 61158 type 10) |
| Datenprotokoll Sicherheit | Profisafe (IEC 61784-3-3) |
| Datenschnittstelle | |
| Ethernet |
Komponenten
106049
MGB-H-AA1A2-R-106049
Griffmodul MGB-H...
MGB-H-AA1A2-R-106049
Griffmodul MGB-H...
- Intelligente Riegelzunge
- Sperreinsatz
- Türgriff
- Montageplatte
114044
MGB-L2B-PNA-R-114044
Auswertemodul und Busmodul MGB-L2...-PN... (Zuhaltung durch Magnetkraft) ohne Bedien- oder Anzeigeelementen, Push-Pull-Stecker
MGB-L2B-PNA-R-114044
Auswertemodul und Busmodul MGB-L2...-PN... (Zuhaltung durch Magnetkraft) ohne Bedien- oder Anzeigeelementen, Push-Pull-Stecker
- Zuhaltung mit Zuhaltungsüberwachung
- Push- Pull Stecker
- Vormontiert auf Montageplatten
- Integrierter Profinet RT-Switch
- Unicode
Zubehör
Downloads
Einzeldokumente
Anleitungen
Betriebsanleitung Sicherheitssysteme MGB-L..B-PN.-… (PROFINET) und mit Datenstruktur Typ B
Dok.-Nr.
Version
Sprache
Größe
Betriebsanleitung Sicherheitssysteme MGB-L..B-PN.-… (PROFINET) und mit Datenstruktur Typ B
Dok.-Nr.
2115174
Version
03/24
Sprache
Größe
3,9 MB
Operating Instructions Safety Systems MGB-L..B-PN.-… (PROFINET) and With Data Structure Type B
Dok.-Nr.
2115174
Version
03/24
Sprache
Größe
3,9 MB
Konformitätserklärungen
EU-Konformitätserklärung
Dok.-Nr.
Version
Sprache
Größe
EU-Konformitätserklärung
Dok.-Nr.
EDC2123624
Version
Sprache
Größe
0,2 MB
UKCA-Konformitätserklärung
Dok.-Nr.
Version
Sprache
Größe
UKCA-Konformitätserklärung
Dok.-Nr.
EDC20001506
Version
Sprache
Größe
0,1 MB
Sonstige Dokumente
Anwendungsbeispiele
Verkaufsunterlagen
Multifunctional Gate Box MGB
Dok.-Nr.
Version
Sprache
Größe
Multifunctional Gate Box MGB
Dok.-Nr.
106108
Version
10-02/18
Sprache
Größe
8,2 MB
Multifunctional Gate Box MGB
Dok.-Nr.
106109
Version
10-02/18
Sprache
Größe
21,7 MB
Multifunctional Gate Box MGB
Dok.-Nr.
109155
Version
10-02/18
Sprache
Größe
21,7 MB
Multifunctional Gate Box MGB
Dok.-Nr.
114433
Version
10-02/18
Sprache
Größe
8,2 MB
多功能系统安全控制系统 MGB
Dok.-Nr.
155883
Version
10-02/18
Sprache
Größe
8,3 MB
Multifunctional Gate Box MGB
Dok.-Nr.
121652
Version
10-02/18
Sprache
Größe
8,0 MB
Zulassungen und Bescheinigungen
DGUV
Dok.-Nr.
Version
Sprache
Größe
DGUV
Dok.-Nr.
Version
Sprache
Größe
0,8 MB
ProfiNET
Dok.-Nr.
Version
Sprache
Größe
ProfiNET
Dok.-Nr.
Version
Sprache
Größe
0,2 MB
ProfiNET
Dok.-Nr.
Version
Sprache
Größe
0,2 MB
c UL us
Dok.-Nr.
Version
Sprache
Größe
c UL us
Dok.-Nr.
Version
Sprache
Größe
0,7 MB
CAD-Daten
Bestelldaten
| Bestellnummer | 113988 |
| Artikelbezeichnung | MGB-L2HB-PNA-R-113988 |
| Bruttogewicht | 4,985kg |
| Zolltarifnummer | 85365019000 |
| ECLASS | 27-27-24-05 Sicherheitsgerichteter Transponderschalter mit Zuhaltung |





